1015 Elsmere W, San Antonio, TX 78201
Property Photos
Would you like to sell your home before you purchase this one?
Priced at Only: $300,000
For more Information Call:
Address: 1015 Elsmere W, San Antonio, TX 78201
Property Location and Similar Properties
- MLS#: 1889376 ( Single Residential )
- Street Address: 1015 Elsmere W
- Viewed: 3
- Price: $300,000
- Price sqft: $204
- Waterfront: No
- Year Built: 1920
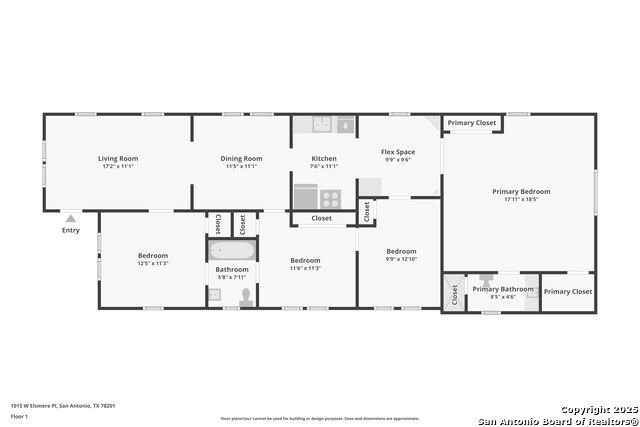
- Bldg sqft: 1470
- Bedrooms: 4
- Total Baths: 2
- Full Baths: 2
- Garage / Parking Spaces: 1
- Days On Market: 139
- Additional Information
- County: BEXAR
- City: San Antonio
- Zipcode: 78201
- Subdivision: Beacon Hill
- District: San Antonio I.S.D.
- Elementary School: Cotton
- Middle School: Cotton
- High School: Edison
- Provided by: eXp Realty
- Contact: Brock Bremmer
- (210) 501-5088

- DMCA Notice
-
DescriptionLocated in the heart of Beacon Hill near Downtown San Antonio, this 4 bedroom, 2 bath home offers a blend of historic charm, modern updates, and long term potential. Interior highlights include wood flooring, double pane windows, and a spacious yard. Major improvements include a new roof and insulation (attic, walls, and underside of home) in 2017, solar panels, a new water heater in 2022, and routine A/C maintenance for added efficiency and comfort. A tenant is currently in place, making this a great option for investors, or it can easily be transitioned into a primary residence. Enjoy easy access to I 10, the Pearl, and the River Walk while living in one of San Antonio's most vibrant and historic neighborhoods.
Payment Calculator
- Principal & Interest -
- Property Tax $
- Home Insurance $
- HOA Fees $
- Monthly -
Features
Building and Construction
- Apprx Age: 105
- Builder Name: Unknown
- Construction: Pre-Owned
- Exterior Features: Siding
- Floor: Ceramic Tile, Wood
- Roof: Composition
- Source Sqft: Appsl Dist
School Information
- Elementary School: Cotton
- High School: Edison
- Middle School: Cotton
- School District: San Antonio I.S.D.
Garage and Parking
- Garage Parking: None/Not Applicable
Eco-Communities
- Green Features: Solar Panels
- Water/Sewer: Water System, City
Utilities
- Air Conditioning: One Central
- Fireplace: Not Applicable
- Heating Fuel: Electric
- Heating: Central
- Window Coverings: All Remain
Amenities
- Neighborhood Amenities: None
Finance and Tax Information
- Days On Market: 297
- Home Owners Association Mandatory: None
- Total Tax: 6661.59
Rental Information
- Currently Being Leased: Yes
Other Features
- Contract: Exclusive Right To Sell
- Instdir: From IH-10, take the Hildebrand exit and then head east. Turn right onto Michigan Ave, and left onto W Elsmere Pl. The home will be on your left.
- Interior Features: One Living Area, Separate Dining Room, Eat-In Kitchen, Utility Area in Garage
- Legal Desc Lot: 8&9
- Legal Description: Ncb 3103 Blk 2 Lot 8&9
- Occupancy: Tenant
- Ph To Show: 2102222227
- Possession: Current Lease Agreement
- Style: One Story
Owner Information
- Owner Lrealreb: No
Similar Properties
Nearby Subdivisions
26th/zarzamora
Balcones Heights
Beacon Hill
Five Points
Hicrest North
Hillcrest
Jefferson Terrace
Los Angeles - Keystone
Los Angeles Heights
Los Angeles Heights Sa
Los Angeles Heights/keystone H
Los Angeles Hts-central (sa)
Los Angeles Hts-central Sa
Los Angeles Hts/keystone Histo
Los Angeles Keystone
Los Angeles-keystone
Los Angels Keystone
Monticello Heights
Monticello Park
Monticello Park Historic (sa)
Villa Del Sol
Woodlawn Lake
Woodlawn Terr Historic
Woodlawn Terrace
- Antonio Ramirez
- Premier Realty Group
- Mobile: 210.557.7546
- Mobile: 210.557.7546
- tonyramirezrealtorsa@gmail.com








































