2619 Flores S 1, San Antonio, TX 78204
Active
Property Photos
Would you like to sell your home before you purchase this one?
Priced at Only: $679,500
For more Information Call:
Address: 2619 Flores S 1, San Antonio, TX 78204
Property Location and Similar Properties
- MLS#: 1911147 ( Condominium/Townhome )
- Street Address: 2619 Flores S 1
- Viewed: 143
- Price: $679,500
- Price sqft: $296
- Waterfront: No
- Year Built: 2026
- Bldg sqft: 2298
- Bedrooms: 3
- Total Baths: 3
- Full Baths: 2
- 1/2 Baths: 1
- Garage / Parking Spaces: 1
- Days On Market: 213
- Additional Information
- County: BEXAR
- City: San Antonio
- Zipcode: 78204
- District: San Antonio I.S.D.
- Elementary School: Briscoe
- Middle School: Harris
- High School: Burbank
- Provided by: Epique Realty LLC
- Contact: Jesse Roel

- DMCA Notice
-
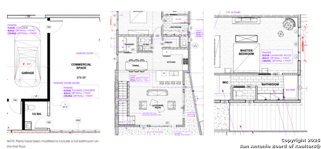
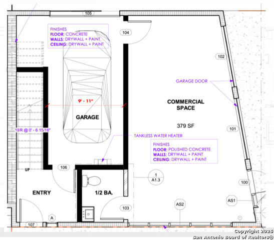
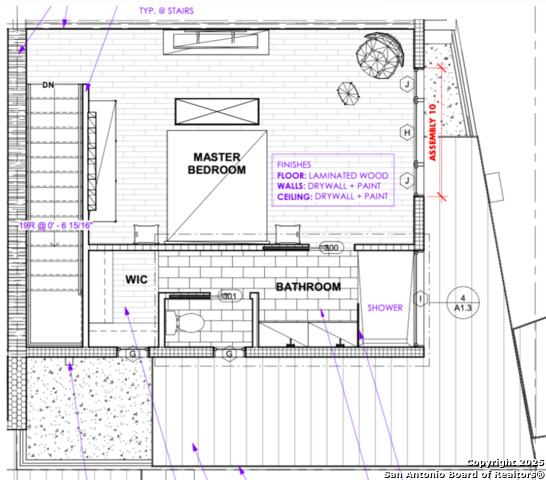
DescriptionSmart design. Prime location. Endless possibilities. Introducing eight exclusive new construction condos on South Flores, created for the modern urbanite who wants it all location, lifestyle, and flexibility. Each residence includes a private entry, dedicated full bath, and flexible first floor space that adapts to you. Use it as a home office, client studio, rental income suite, or even a fitness or creative space the possibilities are endless. Inside, enjoy modern open layouts, clean lined architecture, well appointed kitchens, and abundant natural light. Private balconies and stylish finishes bring the perfect balance of form and function. Step outside and you're immersed in the vibrant, walkable energy of the city. Step inside and you're home your own live/work sanctuary built for today's lifestyle. All information deemed reliable but not guaranteed. Buyer to verify all details. HOA and fees TBD.
Payment Calculator
- Principal & Interest -
- Property Tax $
- Home Insurance $
- HOA Fees $
- Monthly -
Features
Building and Construction
- Builder Name: Bono Construction
- Construction: New
- Exterior Features: Stucco
- Floor: Vinyl
- Kitchen Length: 10
- Source Sqft: Appsl Dist
School Information
- Elementary School: Briscoe
- High School: Burbank
- Middle School: Harris
- School District: San Antonio I.S.D.
Garage and Parking
- Garage Parking: One Car Garage
Utilities
- Air Conditioning: One Central
- Fireplace: Not Applicable
- Heating Fuel: Electric
- Heating: Central
- Security: Other
- Window Coverings: None Remain
Amenities
- Common Area Amenities: Not Applicable
Finance and Tax Information
- Days On Market: 203
- Fee Includes: None
- Home Owners Association Mandatory: None
- Total Tax: 5351.23
Other Features
- Condominium Management: On-Site Management, Other
- Contract: Exclusive Right To Sell
- Instdir: From Downtown head south on S Flores go down 2 miles and future home on right side right before I10
- Interior Features: One Living Area, Living/Dining Combo, Eat-In Kitchen, Island Kitchen, Study/Library, Shop, Open Floor Plan, Cable TV Available, Walk In Closets
- Legal Description: S Durango/Probandt
- Ph To Show: 210-859-7094
- Possession: Closing/Funding
- Views: 143
Owner Information
- Owner Lrealreb: No
- Antonio Ramirez
- Premier Realty Group
- Mobile: 210.557.7546
- Mobile: 210.557.7546
- tonyramirezrealtorsa@gmail.com



















