2802 Lasses Blvd 15, San Antonio, TX 78223
Property Photos
Would you like to sell your home before you purchase this one?
Priced at Only: $795
For more Information Call:
Address: 2802 Lasses Blvd 15, San Antonio, TX 78223
Property Location and Similar Properties
- MLS#: 1909909 ( Residential Rental )
- Street Address: 2802 Lasses Blvd 15
- Viewed: 27
- Price: $795
- Price sqft: $1
- Waterfront: No
- Year Built: 1968
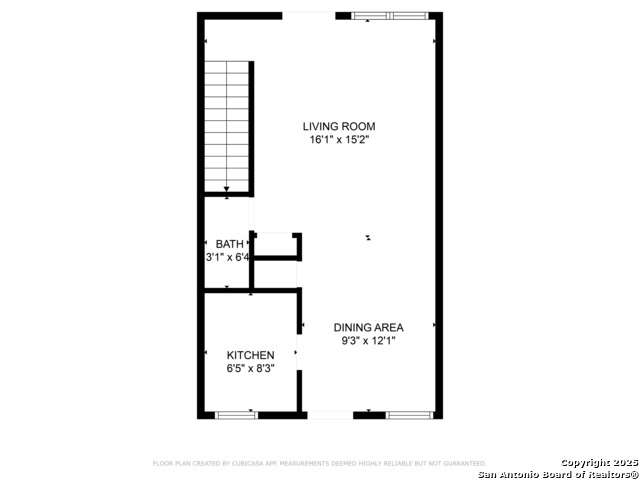
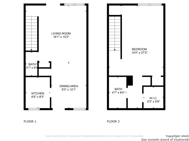
- Bldg sqft: 825
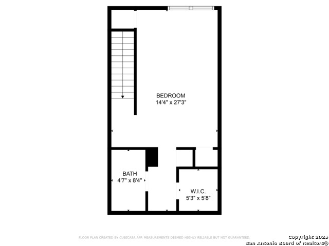
- Bedrooms: 1
- Total Baths: 2
- Full Baths: 1
- 1/2 Baths: 1
- Days On Market: 96
- Additional Information
- County: BEXAR
- City: San Antonio
- Zipcode: 78223
- Subdivision: Unknown
- District: San Antonio I.S.D.
- Elementary School: Foster
- Middle School: Hot Wells
- High School: lands
- Provided by: PMI Birdy Properties, CRMC
- Contact: Gregg Birdy
- (210) 963-6900

- DMCA Notice
-
DescriptionStep into this inviting 1 bed, 1.5 bath home situated in a well maintained multiplex community. Thoughtfully designed for comfort and convenience, this residence features a bright living/dining room combo, carpet and vinyl flooring throughout, and ceiling fans to keep things breezy. Upstairs, the spacious primary bedroom offers privacy and comfort with multiple walk in closets and a private ensuite bathroom complete with a tub/shower combo and single vanity. The home also includes HVAC with a programmable thermostat and additional window units for personalized climate control. The kitchen comes equipped with an electric stove and refrigerator, ready for easy meal prep. Outside, enjoy the natural shade from mature trees and the convenience of a 1 car carport. Take advantage of community amenities like a refreshing pool, picnic and barbecue areas, and a shared laundry facility. Located close to shopping and other local conveniences, this home blends relaxed living with everyday practicality. "*Our award winning Resident Benefits Package (RBP) required program includes Liability Insurance, Pest Control, Monthly Air Filter Delivery, Move in Concierge (utilities/cable/internet), Credit Building, Resident Rewards, Identity Fraud Protection and more for only $65/mo. *If you provide your own insurance policy, the RBP cost will be reduced. Optional Premium Upgrades Available as well, More details in application. *PET APPS $30 with credit card/debit payment per profile or $25 by ACH per profile. All information in this marketing material is deemed reliable but is not guaranteed. Prospective tenants are advised to independently verify all information, including property features, availability, and lease terms, to their satisfaction. *some marketing photos may be virtually staged images*"
Payment Calculator
- Principal & Interest -
- Property Tax $
- Home Insurance $
- HOA Fees $
- Monthly -
Features
Building and Construction
- Apprx Age: 57
- Exterior Features: Stucco
- Flooring: Carpeting, Vinyl
- Foundation: Slab
- Other Structures: None
- Roof: Composition
- Source Sqft: Appsl Dist
Land Information
- Lot Description: Mature Trees (ext feat), Level
School Information
- Elementary School: Foster
- High School: Highlands
- Middle School: Hot Wells
- School District: San Antonio I.S.D.
Garage and Parking
- Garage Parking: None/Not Applicable
Eco-Communities
- Energy Efficiency: Programmable Thermostat, Ceiling Fans
- Water/Sewer: Water System, Sewer System
Utilities
- Air Conditioning: One Central
- Fireplace: Not Applicable
- Heating Fuel: Natural Gas
- Heating: Central
- Recent Rehab: No
- Security: Not Applicable
- Utility Supplier Elec: CPS
- Utility Supplier Gas: CPS
- Utility Supplier Grbge: FLAT FEE $25
- Utility Supplier Other: ATT/SPECTRUM
- Utility Supplier Sewer: FLAT $37.50
- Utility Supplier Water: FLAT $37.50
- Window Coverings: All Remain
Amenities
- Common Area Amenities: Pool, BBQ/Picnic, Near Shopping, Other
Finance and Tax Information
- Application Fee: 75
- Cleaning Deposit: 250
- Days On Market: 92
- Max Num Of Months: 24
- Security Deposit: 545
Rental Information
- Rent Includes: No Inclusions
- Tenant Pays: Gas/Electric, Water/Sewer, Yard Maintenance, Garbage Pickup
Other Features
- Accessibility: Level Lot, Level Drive, First Floor Bath
- Application Form: ONLINE APP
- Apply At: WWW.APPLYBIRDY.COM
- Instdir: Head southeast on I-37 S, 136 for Pecan Valley Dr, Turn left onto Quig Dr, Turn right onto Lasses Blvd, Turn left
- Interior Features: One Living Area, Liv/Din Combo, All Bedrooms Upstairs, 1st Floor Lvl/No Steps, Cable TV Available, High Speed Internet, Walk in Closets
- Legal Description: NCB 12807 BLK 2 LOT TR 3
- Min Num Of Months: 12
- Miscellaneous: Broker-Manager, Cluster Mail Box
- Occupancy: Vacant
- Personal Checks Accepted: No
- Ph To Show: 210-222-2227
- Restrictions: Other
- Salerent: For Rent
- Section 8 Qualified: Yes
- Style: Two Story
- Unit Number: 15
- Views: 27
Owner Information
- Owner Lrealreb: No
Similar Properties
Nearby Subdivisions
Blue Ridge Ranch
Caldwell
Fair
Fair To Southcross
Fair-
Green Lake Meadow
Greensfield Subd
Greenway
Greenway Terrace
Heritage Oaks
Highland Heights
Highland Hills
Highland Hills Sub Un 7 Ncb 1
Highland Park
Hot Wells
Hotwells
Kathy & Francis Jean
Katy Way
Monte Viejo
N/a
Pecan Valley
Presa Pointe
Ranch
Riverside Park
S Presa W To River
Somerset Trails
South To Pecan Valley
Southton Lake
Southton Meadows
Southton Meadows/southton Lake
Southton Ranch
Stone Garden
Unknown
Woodbridge At Monte Viejo
- Antonio Ramirez
- Premier Realty Group
- Mobile: 210.557.7546
- Mobile: 210.557.7546
- tonyramirezrealtorsa@gmail.com








































